Teste Kari
As plantas baixas são um componente vital dos projetos arquitetônicos, fornecendo um diagrama em escala de um cômodo ou edifício. Esses desenhos técnicos ou diagramáticos ilustram as relações horizontais dos espaços, servindo de base para o projeto e a construção de edifícios. Eles permitem a visualização do espaço, da função e da conformidade com as normas vigentes.
Neste artigo, examinaremos os principais componentes de uma planta baixa e forneceremos instruções passo a passo sobre como criar plantas baixas com facilidade usando o Vectorworks Architect .
O que é uma planta baixa?
Em termos simples, uma planta baixa é uma vista de cima para baixo de um pavimento ou cômodo, desenhada em escala. As plantas baixas servem como uma ferramenta técnica e de comunicação crucial para arquitetos, designers, construtores e outros profissionais, atuando como guia para construção, projeto e planejamento de espaços. Elas ajudam a definir as relações espaciais entre diferentes áreas, permitindo o uso eficiente do espaço, e servem como um modelo para visualizar como um espaço funcionará e fluirá.
Tradicionalmente, as plantas baixas são apresentadas em 2D, mas com a evolução da tecnologia, alguns designers estão obtendo sucesso ao apresentar plantas baixas em 3D – vamos dar uma olhada mais de perto em ambas.
Plantas baixas em 2D
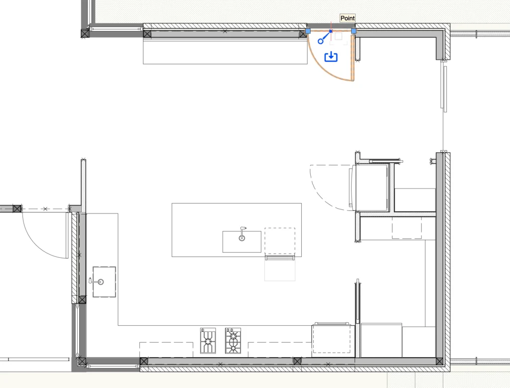
As plantas baixas em 2D são diagramas planos que representam um espaço visto de cima. Esses diagramas ilustram a disposição dos cômodos, as dimensões e a localização de componentes-chave, como portas e janelas. As plantas baixas em 2D são frequentemente preferidas para projetos iniciais ou quando comparações e aprovações rápidas são necessárias, sendo essenciais na fase de construção e licenciamento de um projeto. Tradicionalmente, eram desenhadas à mão, mas agora são criadas facilmente usando softwares de desenho assistido por computador (CAD), que permitem a criação de modelos 3D complexos.
Plantas baixas em 3D
As plantas baixas em 3D são aprimoradas com profundidade para proporcionar maior realismo e complexidade aos projetos, utilizando softwares de design. As plantas baixas em 3D são visualizadas de cima, e a projeção pode ser alterada de uma vista ortogonal plana para uma vista em perspectiva superior, a fim de aprimorar os desenhos e proporcionar uma apresentação mais intuitiva da planta.
Essas imagens são particularmente úteis no projeto de mobiliário de um espaço, pois apresentam um design visual mais finalizado, dando vida à planta baixa. Esses desenhos são mais complexos e criam uma visão realista do espaço final, sendo frequentemente usados no mercado imobiliário ou para apresentar projetos a clientes. Saiba mais sobre como converter desenhos 2D em modelagem 3D de forma eficiente.

As vantagens das plantas baixas
A planta baixa é uma ferramenta arquitetônica vital para criar um espaço refinado e acabado – desde a construção até o projeto final.
Existem muitas vantagens em ter uma planta baixa, incluindo:
Legibilidade: As plantas baixas permitem visualizar e compreender as relações horizontais entre os espaços, fornecendo um projeto claro para a visão final. Elas mostram as relações entre os cômodos de um edifício e como se locomover pelo espaço finalizado. Além disso, as plantas baixas são essenciais para a compreensão de quaisquer outros desenhos fornecidos e ajudam a orientar quem os lê.
Precisão: As plantas baixas fornecem informações cruciais para a viabilidade da construção, acessibilidade e conformidade com as normas. Por exemplo, as plantas baixas fornecem aos construtores detalhes necessários sobre as dimensões dos cômodos, especificações de portas e janelas e a localização de eletrodomésticos e acessórios – tudo isso essencial para o sucesso do projeto.
Sucesso do Projeto: Plantas baixas de qualidade permitem estimativas de custos precisas do início ao fim do projeto, fornecem clareza sobre as necessidades de todas as equipes e facilitam o monitoramento e a inclusão de informações essenciais. Elas garantem que os objetivos gerais do projeto sejam alcançados e ajudam a reduzir erros, identificando falhas antes do início de obras dispendiosas. As plantas baixas também ajudam a manter o orçamento sob controle e fornecem informações úteis para quantificar diversos produtos, como móveis, e especificar portas e janelas – permitindo extrair quantidades com precisão, avaliar o carbono incorporado dos materiais e muito mais.
Elementos-chave de uma planta baixa
Ao elaborar a planta baixa, é importante considerar todos os elementos-chave que impactarão o design e a construção do cômodo, e anotá-los adequadamente para que não haja surpresas em nenhuma etapa do projeto.
Toda planta baixa bem-sucedida inclui diversos elementos-chave, entre eles:
Medidas específicas: Inclua as medidas das dimensões e do tamanho total do edifício, incluindo tetos e marcos de elevação.
Paredes: Indique todas as paredes externas e internas, especificando quais são estruturais.
Portas e janelas: Adicione a localização e os detalhes das aberturas no cômodo, incluindo o tamanho e o sentido de abertura.
Instalações fixas: Anotações sobre a localização e as medidas de aparelhos elétricos, como tomadas e aquecedores, bem como de acessórios de encanamento, incluindo pias e banheiras.
Elementos estruturais: Liste as notações e medidas de quaisquer elementos estruturais, como escadas, colunas e outros.
Referências: Observe outros desenhos para obter mais detalhes e informações sobre o projeto, bem como quaisquer legendas para entender como ler a planta baixa.

Como criar plantas baixas
Agora que exploramos o que são plantas baixas, por que são necessárias e seus principais elementos, vamos revisar como usar o Vectorworks Architect para criar suas plantas baixas.
O Vectorworks Architect foi projetado especificamente para tornar a criação de plantas baixas fácil, eficiente e profissional. Como o software definitivo para projetos arquitetônicos, ele permite esboçar, desenhar e modelar em um fluxo de trabalho BIM totalmente integrado.
À medida que os projetos progridem pelas fases: projeto conceitual, projeto esquemático, desenvolvimento do projeto e documentação de construção, e conforme a escala e o detalhamento das plantas baixas evoluem, desde relações espaciais amplas até documentação técnica detalhada, o Vectorworks permite que você leve seus esboços iniciais por todo esse processo, seguindo o procedimento básico descrito abaixo.
Como criar uma planta baixa no Vectorworks Architect:
- Inicie seu projeto : Importe um levantamento topográfico para localizar o projeto ou, se estiver trabalhando em uma construção existente, importe o arquivo do levantamento. Como alternativa, você pode começar com um documento em branco ou selecionar um modelo básico de planta baixa ou um documento em branco no Vectorworks Architect.
- Desenhe o edifício: Comece usando a ferramenta Parede para esboçar os elementos estruturais externos e internos em metros ou pés. Você pode ajustar as dimensões da parede com precisão usando as Dimensões Inteligentes e a paleta Informações do Objeto, e usar as ferramentas de dimensionamento para anotar comprimentos e relações espaciais.
- Adicione elementos-chave: Insira portas e janelas com as respectivas ferramentas, selecionando ou personalizando os estilos conforme necessário. Além disso, incorpore elementos arquitetônicos como escadas, colunas e espaços para completar o layout interior.
- Aprimore seu projeto: arraste e solte símbolos prontos para personalizar seu espaço: móveis, cozinha, banheiro, luminárias, armários, fiação e muito mais. Além disso, você pode personalizar paredes, janelas, aberturas, corredores e as dimensões gerais do projeto com anotações relevantes, incluindo uma escala gráfica.
- Organize seu arquivo: Utilize classes e camadas para organizar o projeto para documentação ou apresentação posterior, conforme necessário.

Dicas para Planta Baixa
Ao desenvolver plantas baixas, tenha em mente estas práticas recomendadas comprovadas para garantir que seus projetos sejam abrangentes e bem-sucedidos do início ao fim.
Preste atenção à escala e à proporção corretas: esses fatores são vitais para garantir que a planta baixa seja representada com precisão e que todos os itens tenham o tamanho adequado no espaço para facilitar a movimentação e a circulação.
Preste atenção aos detalhes: por exemplo, considere a iluminação natural ao planejar a localização das janelas em um cômodo e observe o sentido de abertura das portas para garantir que elas abram e fechem suavemente. Ou, considere o fluxo de tráfego ao planejar um terreno urbano.
Priorize a localização de eletrodomésticos e acessórios: Lembre-se de que, se esses aspectos não forem definidos com antecedência, isso pode levar a restrições de espaço e exigir revisões.
Questões de conformidade: Certifique-se de que suas plantas baixas estejam de acordo com os códigos e regulamentos de construção locais para evitar a necessidade de alterações dispendiosas ou apressadas posteriormente.
Imagens cedidas por François Lévy Architecture and Interiors .



